Olietankskibs sikkerhedsdesign og klassificering af farlige områder
Du er her: Hjem » Nyheder » Olietanker » Olietankskibs sikkerhedsdesign og klassificering af farlige områder

Olietankskibs sikkerhedsdesign og klassificering af farlige områder

Visninger:0     Forfatter:Site Editor     Publiceringstid: 2024-01-05      Oprindelse:Websted

Forhøre

facebook sharing button
twitter sharing button
line sharing button
wechat sharing button
linkedin sharing button
pinterest sharing button
whatsapp sharing button
sharethis sharing button
Olietankskibs sikkerhedsdesign og klassificering af farlige områder


Olietanker er skibe, der er specialiseret i at transportere bulkvæsker, og lasterne refererer hovedsageligt til transport af bulk råolie og petroleumsprodukter med flammepunkter på 60°C og derunder.Ifølge IEC-60092-502 har skibe, der transporterer olieprodukter med flammepunkt under 60°C, højere fare, og specifikationen har mere detaljerede krav til opdeling af farligt område, og alt elektrisk udstyr i det farlige område skal opfylde den relevante eksplosion -beviskrav.Klassificeringen af ​​farlige områder af olietanker er en meget vigtig del af deres sikkerhedsdesign.


Olietankskib-9


Principper for klassificering af farlige områder for olietankskibe

Klassificeringen af ​​farlige områder for olietanker er hovedsageligt i overensstemmelse med IEC-60092-502 for flydende fragtskibe, der transporterer brandfarlige væsker med et flammepunkt på ikke over 60°C.Den opdeler de farlige områder i: Zone 0, Zone 1 og Zone 2, hvor Zone 0 er den mest farlige og Zone 2 den mindste.Lastrum, olie- og vandtanke, eventuelle trykvakuumrør eller andre ventilationssystemer i samme område som lastrummene og indvendige rum, der indeholder last eller rør og udstyr, der håndterer brændbare gasser eller dampe, er alle klassificeret som zone 0.


Definitionen af ​​zone 1 er relativt kompleks og består af følgende: a) lukkede lokaler umiddelbart ved siden af ​​væskelasttankene;b) rum, hvor lastslanger opbevares, samt lukkede og halvlukkede lokaler, der indeholder lastledninger;og c) områder, der støder op til luger, gas- eller dampudløb, lastdispenseringsventiler, lastrørsflanger og tryk- og vakuumventiler i væskelasttankene.2 kan ganske enkelt forstås som en forlængelse af zone 1, fx zone 1 lokaler, indgange, udgange og ventilations- og luftåbninger.Den udadgående forlængelse af zone 1 ved grænsen af ​​det åbne dæksareal, såsom ind- og udgange, ventilation og luftventiler.I henhold til karakteristikaene for den åbne dæksstruktur betragtes lastrummet med 'udslået' knoglemateriale op til en højde på 2,4 meter over dækket som zone 1, og dækket med 'udslået' ' knoglemateriale op til en højde på 2,4 meter over dækket betragtes som zone 2.


Olietankskibs klassificeringsskema for farlige områder


Layout og indvirkning af forskellige typer åbninger

Åbningerne af olietanker er hovedsageligt opdelt i følgende tre typer: For det første åbningerne til personaleadgang og daglig brug, såsom mandehulsdæksler, lugedæksler, døre, vinduer og vaskelugedæksler;andet, kabinen ventilation, såsom naturlig ventilation, mekanisk ventilation, positivt tryk ventilation;for det tredje det åndbare system, såsom luftrør, batymetrirør, højtryksventiler, åndbare master og vakuumudløsere.Den første type åbning skal opfylde besætningens krav til brug og være opmærksom på påvirkningen af ​​farlige områder, og diskussionen her fokuserer på arrangementet og påvirkningen af ​​lugeventilation og særlige åndbare systemer.


Rimelig og effektiv ventilation kan forhindre ophobning af brændbare gasser, normalt i form af indsugningsluft og udsugningsluft.Til ventilation af farlige steder bør det for det første være langt væk fra ventilationen af ​​sikre steder;for det andet bør luftindtaget på farlige steder så vidt muligt være i det sikre område, hvis det virkelig er uundgåeligt, er det nødvendigt at rådføre sig med klassifikationsselskabet i tide;endelig kan luftudtaget ikke placeres i det mere farlige område, ellers bør fareniveauet øges.Tager ventilationsarrangementet af pumperummet af en olietanker for eksempel støder pumperummet op til lastolietanken på 1 område, på grund af faktorerne for personaledrift er dette område ikke et inert område, så ventilationsmiljøet i pumperummet er ekstra vigtigt.Pumperummet er i vejen for pumpning (30 gange/time) for ventilation, pumperums luftindtag og -udløb skal være så langt væk som muligt fra andre farekilder, og de to kan ikke påvirke hinanden.Luftindtaget skal være i et sikkert område, men ifølge specifikationen er 3 meter rundt om pumpekammerets luftindtag også et farligt område, som skal tages i betragtning i designet.


Ventilation af lastpumperum


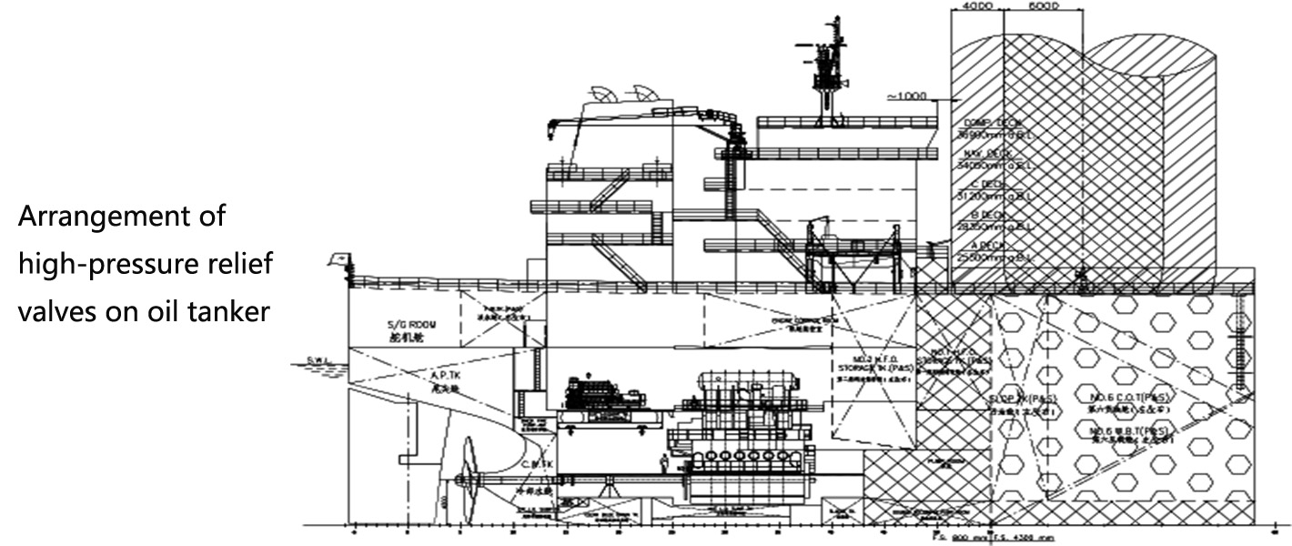
Højtryksudluftningsventiler, udluftningsmaster og vakuumudløsere i lastrum er udluftningsanordninger, der er specifikke for olietanker.Disse enheder frigiver olie og gas til luften udenfor, når trykket af olien og gassen i lastrummet er for højt, og derfor har IEC også givet de strengeste grænser for sådanne enheders farlige områder.Området omkring udluftningsrøret for flydende last, som giver en stor mængde gas eller dampblanding, der genereres under lasthåndtering, ballast eller udvisning af gas fra flydende lasttank, den lodrette cylinder med ubegrænset højde med en radius på 6 meter opad fra udluftningen rør, og det åbne dæksareal inden for en halvkugle med en radius på 6 meter nedad fra udluftningsrøret, eller det halvlukkede område af det åbne dæk, tilhører zone 1, og de 4 meter uden for zone 1 tilhører zone 2 , som vist i fig. Enkelt sagt er deres indflydelsessfære en cylinder med en radius på 10 meter og en ubegrænset højde.Placeringen af ​​lastrumsventilatorerne bør tage hensyn til følgende faktorer: Hold dig først væk fra overbygningen;for det andet, undgå ventilation af dækkets lagerrum i lastrumssektionen og dækkets søgelysmast;for det tredje skal du holde en afstand på mindst 10 meter fra døren til Bowmans lagerrum.


Arrangement af højtryksventiler på olietanker


Conclude

Til design af olietanker, eksplosionssikker er en vigtig del af sikkerhedsdesignet, hvis designet ikke er korrekt, vil det udgøre stor fare for fremtidig brug.Designere bør være opmærksomme på klassificeringen af ​​farlige områder af olietankeren og være opmærksomme på koordineringen af ​​forskellige parter i designprocessen, således at alle former for åbninger, ventilation, luft og kabine layout af olietanker kan opfylde forskrifter og normer. Qinhai forbedrer konstant sit interne ledelsesniveau, med vægt på kvalitetsfrontkontrol og processtyring.Vi har opnået CCS kvalitetsstyringscertifikat udstedt af China Classification Society, og bestået certificeringen og miljøkonsekvensvurderingen og accept af regeringsafdelinger.I de seneste år overholder virksomheden med den nationale strategiske implementering og kravene til informationsdannelse og intelligent udvikling af skibsindustrien. Fremme 'integration af de to' og fortsætte med at implementere produktionsautomatisering og intelligent fremstilling.Vi har flere automatiske montage og semi-automatiske produktionslinjer.

PRODUKTKATEGORI

Tilfældige produkter

PRODUKTER

OM OS

SUPPORT

KONTAKT OS

Business Tel: +86-0523-88329456

Skype: Ruis@tzcp-flooring.com

E-mail: yu@qinhai-shipping.com

Mobil. +86-13775678891

Tai Zhou Qin Hai Shipping Science and Technology Co., Ltd © 2022 - ALL RIGHTS RESERVED